LWH Prototype
Research | Residential
Date: 2010
Location: Vancouver, BC
Description:
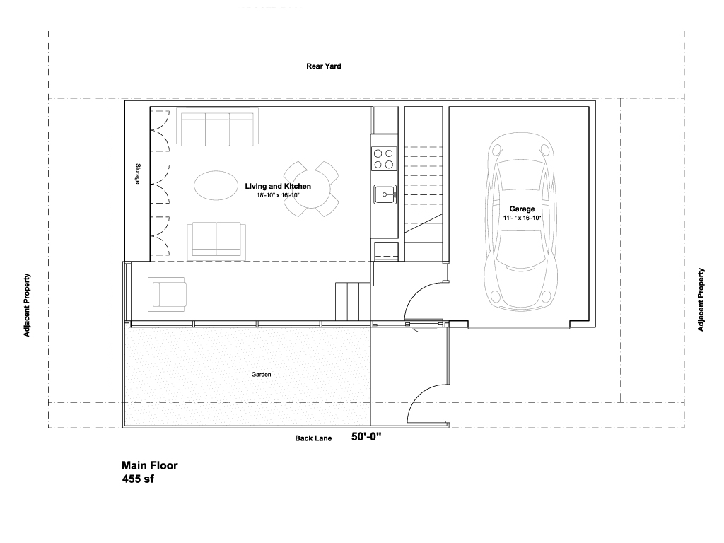
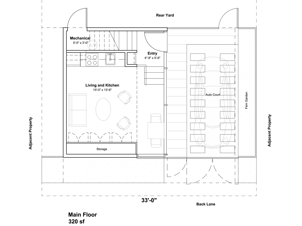
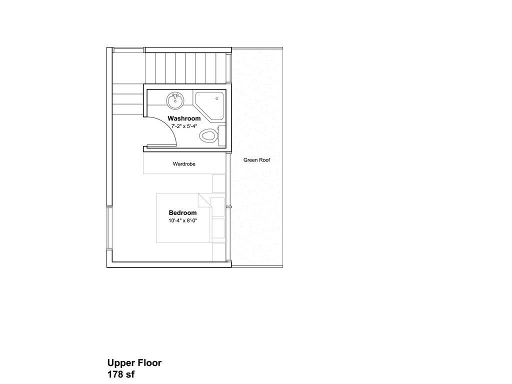
Based on the initial laneway house guidelines produced by the City of Vancouver, we developed in conjunction with Lanewave several laneway house prototypes for the typical Vancouver lot widths of 33′ and 50′.
The design for these prototypes is driven by two formative concepts: the need to screen the interior spaces for privacy; and the desire to defy the constraints of these small units by offering over-height spaces and connections out into private garden areas.












